
Yildiz & Brüll Projekt AG
Wir schaffen
Werte, die
Bestand haben.
Ganzheitlicher Partner für Immobilieninvestments – Alles aus einer Hand.
Yildiz & Brüll
Projekt AG
Wir begleiten Sie durch den gesamten Prozess – von der Finanzierung und Bauabwicklung bis hin zur Vermietung und Objektpflege. Die nahtlosen Übergänge unserer Unternehmensstruktur schaffen ein echtes „Alles-aus-einer-Hand"- Erlebnis.
Leistungen entdeckenGanzheitliche Lösungen
Wir vereinen alle Schritte des Immobilieninvestments unter einem Dach – effizient, transparent und renditeorientiert.
Erfahrenes Team
Unser Team aus Spezialisten vereint Know-how aus Bau, Finanzierung, Verwaltung und Service – mit regionaler Präsenz im Dreieck Bremen–Hamburg–Hannover.
Nachhaltige Ergebnisse
Dank der starken Verzahnung unserer Unternehmensbereiche erzielen unsere Kunden planbare und wirtschaftlich überzeugende Ergebnisse.
Alles aus
einer Hand.
Bauen mit System
Projekt AG
Planung, Bau und schlüsselfertige Erstellung von Wohnimmobilien. Fokus auf standardisierte Bauweisen für Kosteneffizienz und Planungssicherheit – mit eigener Bauleitung, Qualitätskontrolle und fixen Baupreisen.
- Standardisierte Bauweise
- Eigene Bauleitung
- Fixe Baupreise
- Schlüsselfertige Übergabe
Rundum betreut
Hausverwaltung GmbH
Übernahme der Erstvermietung direkt nach Fertigstellung mit Mieterscreening, Vertragsgestaltung und laufendem Mietmanagement sowie Instandhaltung und Nebenkostenabrechnung.
- Erstvermietung
- Mieterscreening
- Laufende Verwaltung
- Nebenkostenabrechnung
Finanzierung ohne Hürden
BaufiGuru
Individuelle Finanzierungsberatung mit enger Zusammenarbeit mit überregionalen Banken und Finanzinstituten. Finanzierungskonzepte auch mit wenig oder ohne Eigenkapital.
- Individuelle Beratung
- Überregionale Banken
- Wenig Eigenkapital möglich
- Komplettbegleitung
Werterhalt gesichert
Immobilienservice GmbH
Gartenpflege, Hausmeisterdienste und Gebäudereinigung – ergänzt durch technische Objektbetreuung, regelmäßige Inspektionen und Kleinreparaturen für langfristigen Werterhalt.
- Gartenpflege
- Hausmeisterdienste
- Technische Betreuung
- Regelmäßige Inspektionen
Ein Ansprechpartner –
Alle Leistungen.
Von der Grundstückssuche bis zur dauerhaften Objektbetreuung begleiten wir Sie durch jeden Schritt Ihres Immobilieninvestments.
Grundstücksakquise
Identifizierung geeigneter Standorte mit starker Nachfrage und hohem Wertpotential im Dreieck Bremen–Hamburg–Hannover.
Bauabwicklung
Abwicklung mit standardisierter Bauweise in hoher Qualität, Transparenz und termintreue Umsetzung bis hin zur schlüsselfertigen Übergabe.
Finanzierung
Individuelle Finanzierungsberatung sowie Begleitung bei Kaufverträgen, Notar, Verkäufer- und Maklerkommunikation.
Hausverwaltung
Erstvermietung der Einheiten mit anschließender Verwaltung und Mieterbetreuung für einen reibungslosen Start.
Immobilienservice
Langfristige Objektpflege vom Garten bis hin zur Wartung technischer Anlagen für nachhaltigen Werterhalt.
Effizient.
Hochwertig.
Bezahlbar.
Unser Konzept ermöglicht attraktive Baukosten bei gleichbleibend hoher Qualität durch standardisierte Bauweise.
*Bruttopreise inkl. Baunebenkosten
Einstieg
Zweifamilienhaus
2.300 € / m²
Überschaubare Investitionsgröße mit hoher Nachfrage bei Mietern und stabilen Erträgen. Moderne, energieeffiziente Planung mit hervorragendem Preis-Leistungsverhältnis.
- Hohe Mietnachfrage
- Energieeffiziente Bauweise
- Ideal für Einzelinvestoren
- Vermietbare Fläche ab ca. 220 m²
Vierparteienhaus
2.500 € / m²
Ideal für kleine bis mittlere Anlageportfolios als Bindeglied zwischen Klein- und Mehrfamilieninvestments. Hohe Wirtschaftlichkeit und überschaubares Risiko.
- Optimale Flächeneffizienz
- Vermietbare Fläche ab ca. 300 m²
- Hohes Renditepotential
- Skalierbar & risikoarm
Ab 5 Einheiten
Mehrparteienhaus
2.800 € / m²
Konzipiert für mittlere bis größere Anlageportfolios mit hoher Skalierbarkeit und stabiler Mietrendite. Vermietbare Fläche startet bei ca. 450 m².
- Hohe Skalierbarkeit
- Stabile Mietrenditen
- Fläche ab ca. 450 m²
- Für professionelle Investoren
Hochwertige Ausstattung
mit nachhaltigem Mehrwert.
Unsere Wohnkonzepte zeichnen sich durch bewusst ausgewählte, hochwertige Ausstattung aus, die moderne Wohnqualität, langfristige Vermietbarkeit und nachhaltigen Werterhalt miteinander verbindet – mehr als Standard.

Großzügige Wohnküchen
Kücheninsel und Markengeräte der BSH-Gruppe für Design, Funktionalität und Langlebigkeit.

Massive Bauweise
Ohne Leichtbauwände – für verbesserten Schallschutz und langfristig hohe Wertigkeit.

Moderne Badezimmer
Wellness-Charakter durch große Badewanne, Regendusche und Doppelwaschtisch.

Nachhaltige Energieversorgung
Photovoltaikanlage zur Betriebskostenreduzierung in Kombination mit Wärmepumpe und Vorrüstung für E-Ladestation.
Realisierte
Projekte.
Projektbeispiel
Helvesiek –
Zweifamilienhäuser
Einheiten
2 Wohneinheiten
Wohnfläche
130–150 m² je Einheit
Fertiggestellt
6 Häuser
Im Bau
3 Häuser (Apr. 2026)
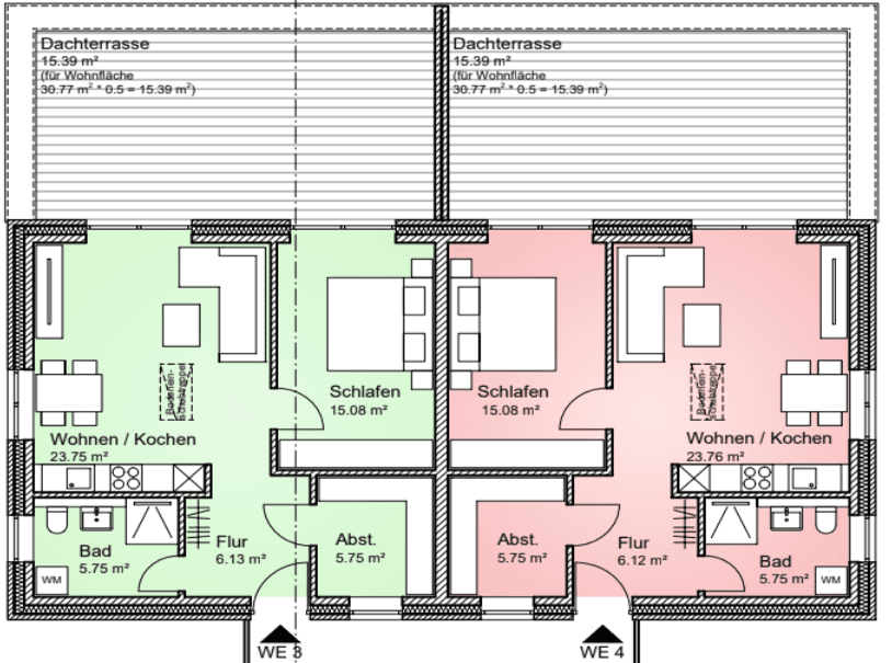
Grundriss – 4-Zimmer Wohneinheiten
- Moderne, funktionale Raumaufteilung
- Massive Bauweise ohne Leichtbauwände
- Ausreichend Abstell- und Stauflächen
- Modernes Küchenkonzept inkl. Kochinsel
- Großzügiger Garten mit Terrasse





Projektbeispiel
Klein Meckelsen –
Vierparteienhaus
Einheiten
4 Wohneinheiten
Wohnfläche
72–90 m² je Wohnung
Im Bau
3 Häuser (Apr. 2026)
Besonderheit
Außenliegende Treppe
Grundriss – 1-2 Zimmer Wohnungen
- Moderne, helle Wohnräume mit bodentiefen Fenstern
- Offene Küchenkonzepte
- Jede Wohnung mit großzügigem Außenbereich
- Sehr hohe Flächeneffizienz
- Ideal für Singles oder Paare




Helvesiek –
Zweifamilienhäuser
Ein reales Beispiel zeigt, wie unsere standardisierte Bauweise attraktive Renditen bei gleichzeitig niedrigen Einstiegskosten ermöglicht.
2.459 €/m²
Gesamtinvestitionskosten
Niedrige Gesamtinvestitionskosten inkl. Grundstück, Kauf- und Baunebenkosten.
5,4 %
Mietrendite
Trotz niedriger Miete von 11,00 €/m² wurden Renditen von ca. 5,4 % realisiert.
49 %
Wertzuwachs in 10 Jahren
Prognostizierter Wertzuwachs nach 10 Jahren bei 100 % Finanzierung (1,0 % Tilgung, 3,8 % Zins) und einem Kapitalwert von 3.250 €/m².
* Alle Angaben beziehen sich auf das Referenzprojekt Helvesiek. Individuelle Ergebnisse können abweichen.
Aktuelle
Bauprojekte.
In 2026 realisieren wir Fertigstellungen bei über 40 Neubauprojekten, überwiegend moderne Zweifamilienhäuser. Das unterstreicht die starke Marktnachfrage, unsere Expertise und den attraktiven Preisvorteil durch standardisierten Bau.
Salzhausen
5 ZweifamilienhäuserStark nachgefragter Pendlerstandort
Bremen
3 ZweifamilienhäuserExklusive Lage in Bremen-Oberneuland
Winsen (Luhe)
6 ZweifamilienhäuserTeilweise in direkter Elbdeichnähe
Worpswede
8 ZweifamilienhäuserIn den begehrten Künstlerorten Worpswede und Hüttenbusch
Marxen
4 ZweifamilienhäuserDirekte Lage zur Naherholungsregion Nordheide
Winsen (Luhe) – Stöckte
1 × 5-ParteienhausUnwiederbringliche Lage am Deich-Naturschutzgebiet

40+
Fertigstellungen in 2026
Lassen Sie uns
gemeinsam planen.
Interessiert an einem Immobilieninvestment oder einem unserer Projekte? Wir beraten Sie persönlich und unverbindlich.
Adresse
Roggenkamp 3a
27389 Helvesiek